Elevation

#

3rd St, Mahalakshmi Nagar ,Adambakkam,

Overview

 

Project Name : DM HOMES
Location : 3rd Street, Mahalakshmi Nagar
Project type : Premium residential Apartments
Floor space : Stilt + 3 Floors
No. of units :  6 units
Floor Type :  3BHK / 2 BHK

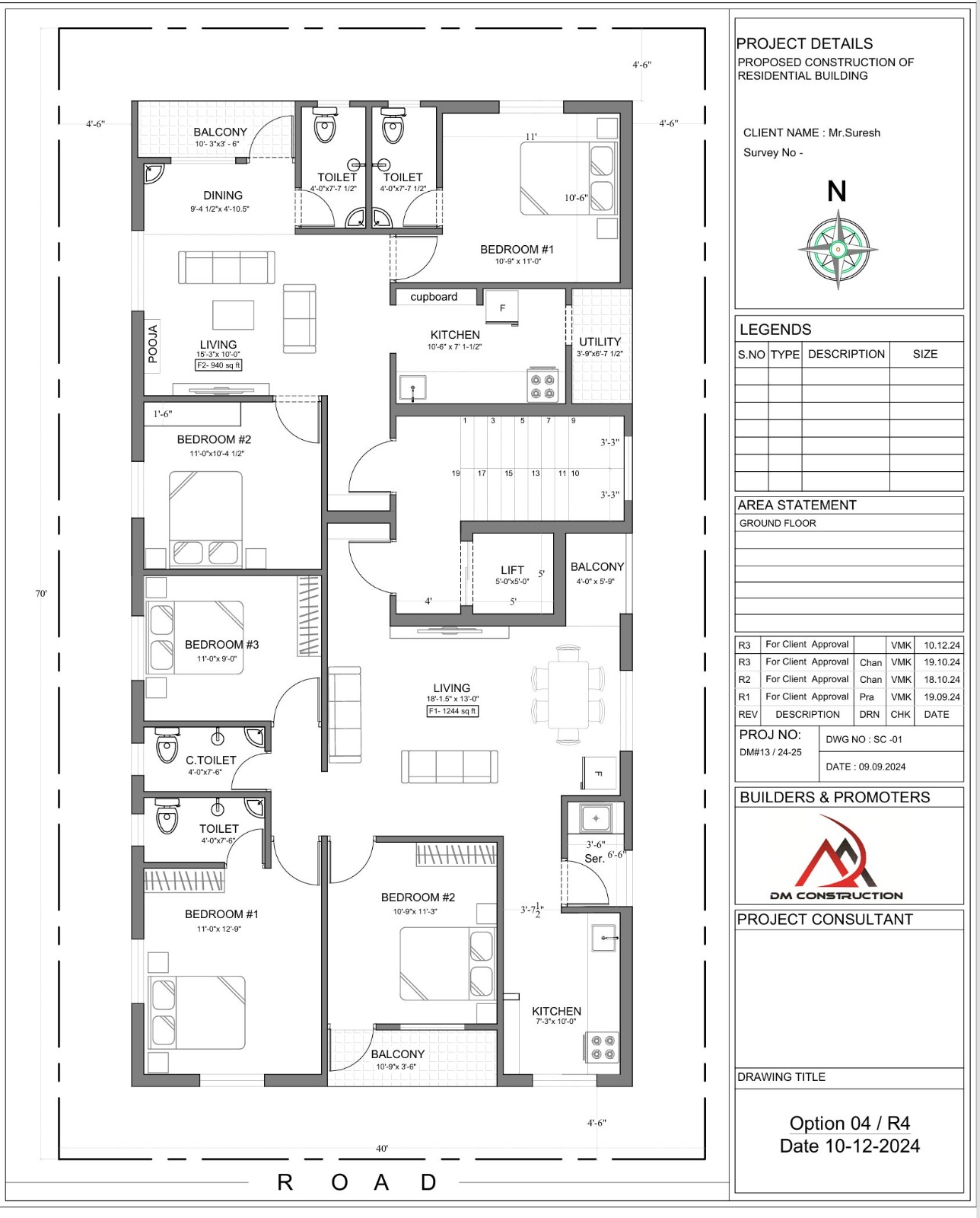
Floor Plan

#

3rd St, Mahalakshmi Nagar ,Adambakkam,

#

3rd St, Mahalakshmi Nagar ,Adambakkam,

Specification

General

  • Elegant elevation
  • Seismic structural design ( Building Earthquake resistant)
  • Cross Ventilation for all rooms
  • Vaasthu Plan for entire building
  • Lift
  • Exquisite Lobby in stilt floor
  • Brand tiles for car parking area
  • Brand Tiles for Drive way
  • Branded cooling tiles


Flooring

  • Brand Tiles for Living and Dining Room
  • Wooden Laminate Flooring for Bedrooms
  • Double charged Vitrified Tiles for Kitchen
  • Designer Tiles for Toilet Walls for full height
  • Black Granite for Kitchen Platform
  • Granite Flooring in Staircase area


Carpentry

  • Teak Wood for Main Door Frame and Solid Panel Shutter
  • Safety door with One-side Teak Panels
  • Teak wood frames for all Doors
  • Laminate Finish Flush Doors for other Rooms
  • Polymer Coated Flush Doors for toilets
  • Upvc windows


Electrical

  • FRLS wires
  • AC Point in Living, Dining & Bedrooms
  • Tv & Phone point in Living & Bed rooms
  • Modular Switches with Metallic Boxes
  • Exhaust Fan point in Toilets & Kitchen
  • Automatic Phase change-over Switches with ELCB IN Main Board
  • Fully automated panel boards
  • CCTV Surveillance System


Painting

  • Premium Emulsion Paint for entire interior
  • Weather Coat Emulsion Paint for entire exterior
  • Melamine Finish for Main Door
  • Satin Enamel for Door Frames & Grills


Plumbing

  • Parryware, Jaquar Closets and Wash Basins in Toilets
  • Counter Wash Basin in Dining
  • Parryware, Jaquar Fittings
  • Diverters in All Toilets
  • Glass Shower Enclosure
  • Carysil Sink with Sink Mixer in Kitchen
  • Booster Pump

Flat Availability

Floor Flat Name SqFt. Availability
FIRST FLOOR 1A 1244 Sqft Sold
FIRST FLOOR 1B 933 Sqft Sold
SECOND FLOOR 2A 1244 Sqft Sold
SECOND FLOOR 2B 933 Sqft Sold
THIRD FLOOR 3A 1244 Sqft Sold
THIRD FLOOR 3B 933 sqft Available

Construction

#

3rd St, Mahalakshmi Nagar ,Adambakkam,

#

3rd St, Mahalakshmi Nagar ,Adambakkam,

#

3rd St, Mahalakshmi Nagar ,Adambakkam,

#

3rd St, Mahalakshmi Nagar ,Adambakkam,

#

3rd St, Mahalakshmi Nagar ,Adambakkam,

#

3rd St, Mahalakshmi Nagar ,Adambakkam,

#

3rd St, Mahalakshmi Nagar ,Adambakkam,

#

3rd St, Mahalakshmi Nagar ,Adambakkam,

Location

Enquiry Now